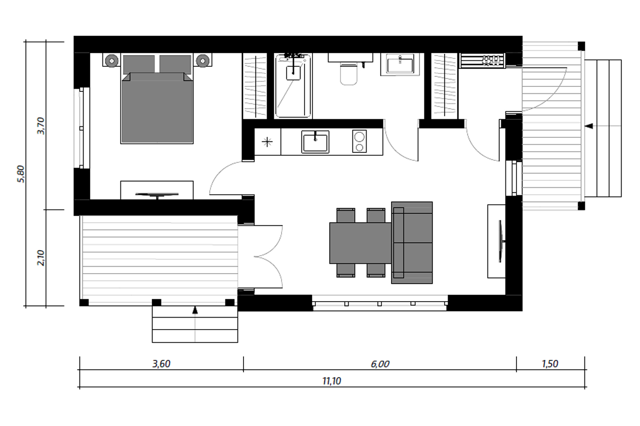
Эффектный одноэтажный дом с террасой под навесом и крыльцом. Его площадь составляет 38,38 м², что делает его очень просторным и комфортным.
Внутри дома есть всё необходимое для жизни: кухня-гостиная с выходом на террасу, санузел, прихожая и спальня. Терраса с двух сторон защищена стенами дома, что создаёт ощущение уюта.
Особенностью проекта является односкатная крыша, которая придаёт дому необычный вид, напоминающий дом с плоской кровлей. Фасад украшен только вертикальными и горизонтальными линиями.
Этот дом идеально подойдёт для холостяка, семейной пары любого возраста или родителей с детьми.
В городской суете и повседневной рутине мы часто нуждаемся в отдыхе и перезагрузке. Глэмпинги и парк-отели, расположенные в живописных местах нашей страны, таких как побережье, тайга, реки, горы, озёра и степи, предлагают возможность ощутить себя заново.
Найдите своё место, где вы сможете расслабиться и отдохнуть, где проблемы решатся сами собой, а вы сможете выспаться и восстановить силы. Возможно, это будет уютный домик, который станет вашим уголком спокойствия и гармонии.
