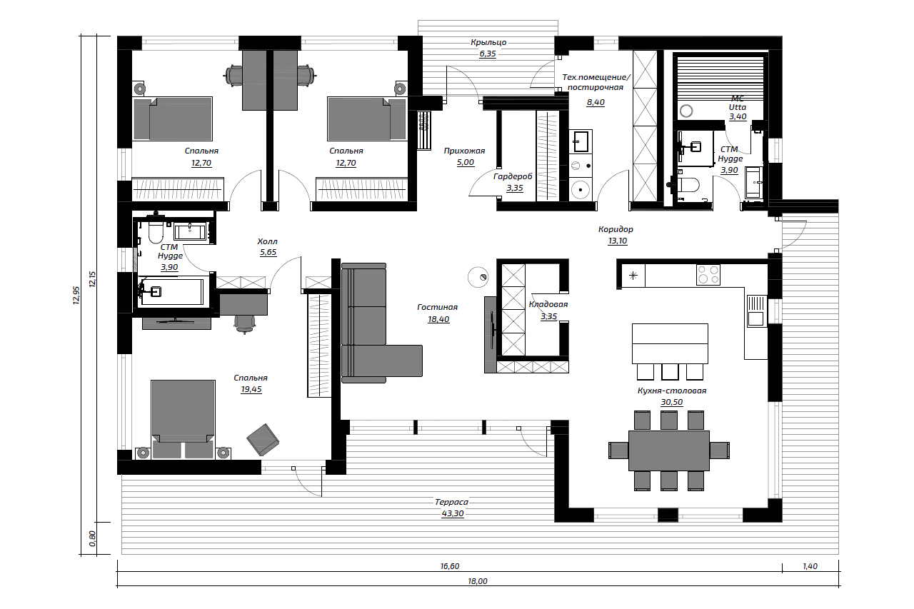
Это элитное здание, выполненное в стиле скандик. Его дизайн отражает актуальные тенденции в архитектуре: плоская крыша, просторная терраса, окна от пола до потолка, строгие линии и пропорции, а также продуманные планировки для максимального удобства жильцов.
В доме есть всё, что нужно для комфортной жизни: кухня-столовая, гостиная, три спальни, гардеробная, постирочная, кладовая, два санузла и сауна.
Отзывы
Оставить отзыв
Загрузка отзывов...
