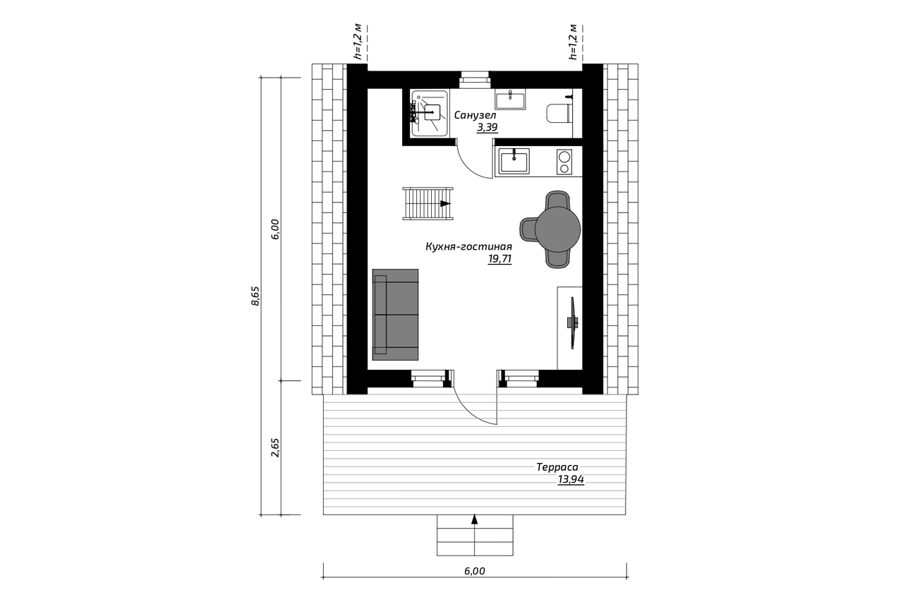
Традиционный одноэтажный дом в стиле А-фрейм с жилой мансардой и открытой террасой. Его общая площадь составляет 37 квадратных метров. Этот дом идеально подойдёт для небольшого участка.
Всё пространство дома представляет собой просторную и уютную мансарду, которая имеет множество преимуществ: оригинальная конструкция; высокие потолки в гостиной; терраса, которая может стать второй гостиной под открытым небом; спальня, расположенная под потолком; ванная комната с окном; компактная кухня.
На стыке пола и скатов кровли можно организовать систему хранения, чтобы эффективно использовать всё пространство дома.
Просыпайтесь под звуки дождя, который тихо шуршит по крыше, и наслаждайтесь новым днём на террасе.
Отзывы
Оставить отзыв
Загрузка отзывов...
