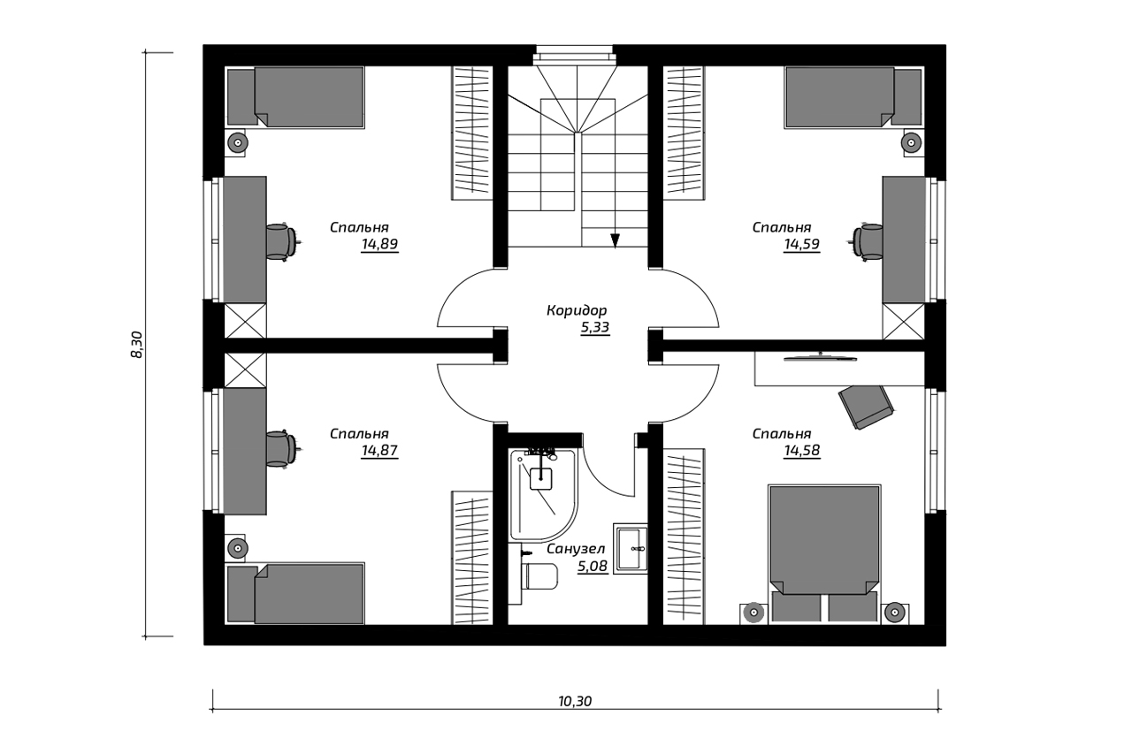
Дом с двумя этажами, общей площадью 146,39 м², в котором есть пять спален и два санузла. На первом этаже находится просторная и светлая гостиная-кухня площадью 29,78 м², а также небольшая прихожая площадью 5,41 м², техническое помещение площадью 7,92 м², ванная комната площадью 6,56 м² и спальня площадью 15,02 м². Второй этаж предназначен для отдыха и уединения каждого члена семьи. Здесь расположены ещё две спальни площадью 15,02 м², две ванные комнаты площадью 4,94 м² и две спальни площадью 14,63 м².
У двухэтажных домов площадь застройки примерно в два раза меньше общей площади. Этот коттедж идеально подходит для совместного проживания трёх поколений одной семьи.
Отзывы
Оставить отзыв
Загрузка отзывов...
